Commercial STRIP CENTER.

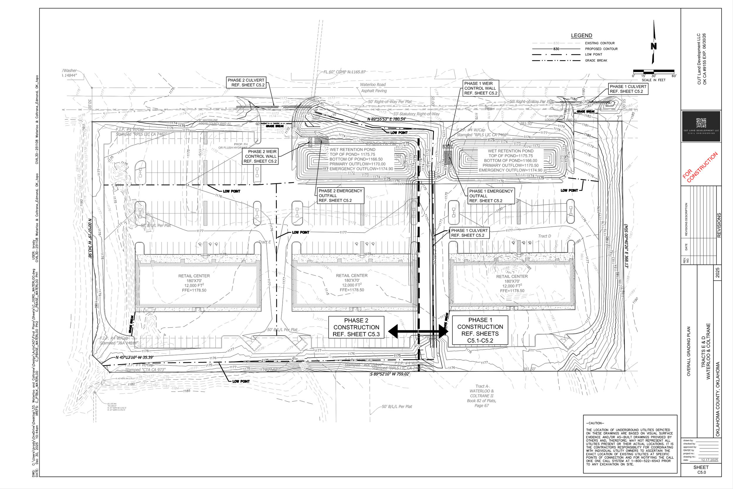
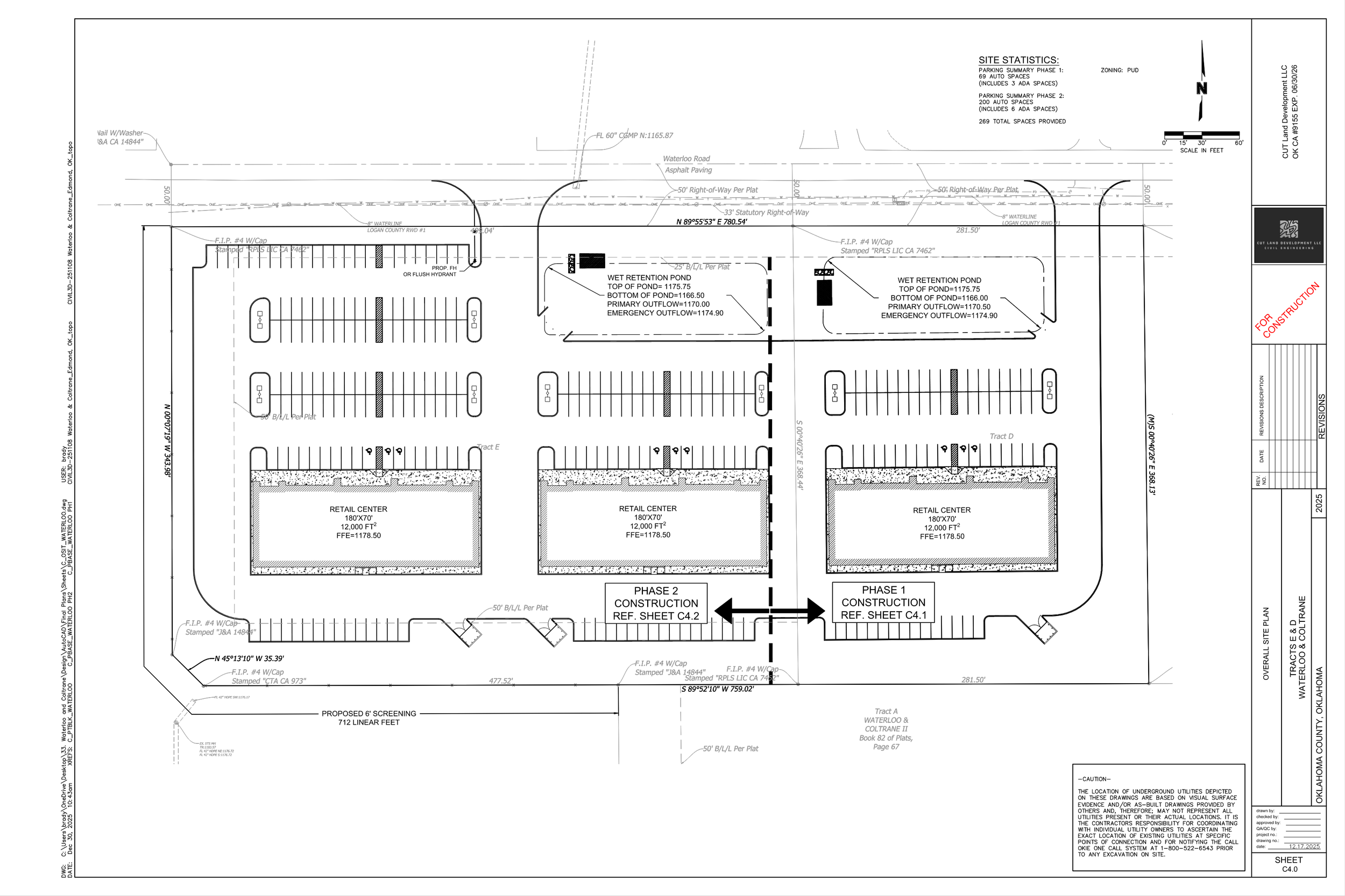
Waterloo & Coltrane is a proposed Commercial Development under construction in Unincorporated Oklahoma County, Oklahoma. As the lead civil engineer for this project, I was responsible for providing comprehensive land development services from concept through final approval. Brady’s role included securing necessary approvals from both the Oklahoma County Planning Department.

Key aspects of the project included:

  • Grading & Drainage Plans: Brady developed grading and drainage plans to ensure proper site preparation, stormwater management, and compliance with the County’s drainage ordinance. These plans were integral in maintaining the safety and sustainability of the development.

  • Retention Pond Design: A critical part of the project was conducting a drainage study to ensure no downstream flooding impacts. The study was performed to meet Oklahoma County’s requirements for stormwater management and was approved by the County Engineer.


Location Map.

 
Previous
Previous

Storage Unit Development- Oklahoma City, Oklahoma

Next
Next

Culvert Design for Residential Lot- Edmond Oklahoma